여의도에서 근무할 때 여의도공원 산책을 하다보면, 이게 도대체 무슨 의미가 있나 하는 생각을 할 때가 있다. 주변의 많은 회사원들이 너나 할 것 없이 다람쥐 챗바퀴 도는 것처럼 뱅글 돌다가 사무실로 들어가는 것이 좀 아쉽기도 하고, 그냥 땅을 놀리는 것 같아서 아쉽기도 했다.
그런데, 이런 공간을 활용을 하겠다고 하니, 잘했으면 좋겠다. 10년 뒤에는 세상이 좀 바뀌어있지 않겠나 하는 기대를 해보게 된다.
아무것도 하지 않던 서울이 좀 바뀌는 것이 그나마 희망적이라 생각되고, 문재인 정권 하에서 뭐라도 할 수 있었을까 하는 측은한 생각도 든다. 문재인대통령에다가 계속 박원순이라도 있었으면 어쩔 뻔 했나 하는 생각도 해보게 된다. 박원순 자살 덕에 월드컵대교가 겨우 건설이 완료된 걸 보면, 도대체 뭘 했었나 생각해보지 않을 수 없다.
시민들에게 꼭 필요한 것을 만들어내고, 개선하고, 더 좋게 만들기 위해 의견을 수렴하는 것이 행정이라 생각하는데, 박원순은 철저하게 이상한 짓만 했던 것은 아닌가 하는 생각을 하게 된다. 정말, 왜 그랬을까?
여의도공원에 오페라 하우스가?…서울시, 세계적인 문화공원 만든다
CBS노컷뉴스 김민수 기자
2022-04-11 11:15

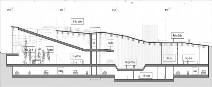
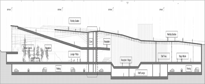
여의도 루프탑 오페라 설치 제안. 서울시 제공
서울시가 지난달 25일까지 공모한 '여의도공원 미래모습 시민아이디어 공모전'에 118개 제안이 접수돼 우수작 20편을 선정했다고 11일 밝혔다.
이번 공모전은 '2040 서울플랜'에서 여의도의 국제금융·업무·MICE산업 중심지 기능이 강화되고 GTX-b 신설 등 대중교통 인프라, 여의도 아파트지구 정비사업 등으로 도시여건이 변화함에 따라 중심공간인 여의도공원을 세계적인 문화공원으로서 탈바꿈하기 위해 서울시가 기획했다.
이번 공모전은 여의도공원이 단순한 식재와 휴식공간만이 아닌 다양한 문화시설, 공간활용을 통해 시민중심의 동적인 공간으로 활용하자는 아이디어가 많았다고 서울시는 설명했다.
특히, 공원 내 랜드마크 문화시설(오페라 하우스 등)도입, 수직적 입체공간, 다양한 체험 콘텐츠 등이 눈길을 끌었다.
서울의 3대 도심임에도 문화시설을 찾아보기 어려운 여의도지역에 도시문화 중심지로서 공원 기능을 확대하여 서울을 대표할만한 랜드마크적인 문화시설 도입하자는 아이디어가 다수 제안됐다.

여의도공원과 국회의사당 축 교차점에 공연장 및 문화시설 도입 제안. 서울시 제공

여의도공원 지하부에 공연장 및 지하보행축 설치 제안. 서울시 제공
여의도공원과 국회의사당 축 교차점에 공연장을 포함한 문화시설을 도입하자는 'URBAN SPUIT_어반 스포이트(진세인)'의 제안과 다양한 높이를 주어 한강과 여의도, 국회의사당을 조망할 수 있는 '여의도 루프탑 오페라(김윤성)' 제안, 공원하부 지하에 공연장을 구성하고 여의도역 지하보행축과의 연결을 제안한 '여의도 공연원(김진수)'이 주목을 끌었다.
여의대로, 한강 및 샛강공원과의 접근성을 해결하기 위해 공원 및 주변지역을 입체적인 공간으로 계획하여 주변지역과 유기적으로 연계하는 방안이 제시됐다. 특히 지상 입체보행데크 설치, 지하통로 개설(국제금융지구-여의도공원), 공원레벨을 낮춰 수변공원으로 주변과 일체화하는 창의적인 아이디어가 제출됐다.

'쇼 박스 파크 SHOW BOX PARK' . 서울시 제공

'여의나무'. 서울시 제공

'여의도 디핑 파크'. 서울시 제공
또, 여의도공원이 내포한 역사성에 초점 맞추어 장소적 특징을 일부 보완하고, 상부 열린 공연장, 다채로운 공간계획 등 연계형 시설 및 프로그램 제안과 환경교육과 체험이 있는 생태공원으로서 여의도공원의 가능성 등을 제시하기도 했다.
서울시는 20개 수상작을 비롯해 총 118개 제출된 아이디어의 컨셉들을 검토해 여의도공원 활성화 기본계획에 녹여낼 계획이다.
수상작 20편에는 총상금 1000만원과 서울시장상이 수여된다. 제안 작품은 '내손안에 서울' 공모전 홈페이지를 통해 공개된다.
홍선기 서울시 공공개발기획단장은 "이번 공모전을 통해 여의도공원이 어떻게 변화해야 하고 무엇을 준비해야 하는지 알 수 있는 시간이었다"며 "공모전에 응해주신 시민들의 소중한 아이디어는 여의도공원 정책구상에 활용할 것"이라고 말했다.
여의도공원에 오페라 하우스가?…서울시, 세계적인 문화공원 만든다
'여의도공원 미래모습 시민아이디어 공모전' 우수작 20편 선정
m.nocutnews.co.kr
댓글 영역